Westwood Zoning Board Approves Variances and Special Permits for Fire Station 1 at Existing High Street Location

Image

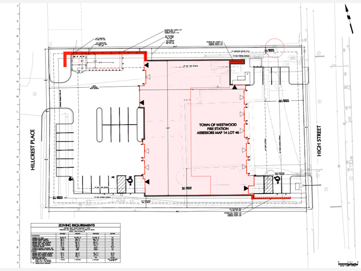
Source: Town of Westwood website (Zoning Board of Appeals 11/13/2024 meeting materials).The Proposed Site Plan (10-9-24)prepared by Dore + Whittier shows how the proposed design for Fire Station 1 compares to zoning requirements.

The design for a new Fire Station 1 for the Town of Westwood, to be located at the site of the existing fire station (637 High Street), has passed another hurdle, when in the evening of Wednesday, November 13th, the three members of Westwood Zoning Board of Appeals unanimously approved all special permits and variances sought by the Town of Westwood to address zoning violations. 

The Town of Westwood had applied to the Board for special permits and variances due to Zoning Bylaw violations in the building design created by Dore + Whittier, the architectural design firm which has been hired by the town. The town sought variances and special permits related to building height, building coverage, impervious surface area, and both side setbacks, and for parking within the front, rear and side required setback. 

For example, the proposed new Fire Station 1 at its highest point - the gable -  would measure over 50’, and at its flat roof, it would measure over 37’. But the Zoning Bylaws allow a height of 25’. Additionally, the impervious surface on the site is at 81.6 percent whereas 50 percent is allowed. The building coverage on the parcel is over 30 percent of the lot area, where 25 percent is allowed. The project design places parking about 7’ from the rear street line and about 21’ from the front street line, where a minimum setback of 25’ is required.



Discussion continued for several hours. Public comments were submitted both in-person and by earlier submitted written comments. About 12 commenters spoke at the public hearing, and expressed concern regarding:

  • Traffic flow
  • Detrimental effect of construction on the business of the next-door funeral home
  • Height of the building (aesthetic concerns)
  • Pedestrian safety
  • Lack of process transparency
  • Construction noise which would disturb the rest of young children in an abutting home
  • Large size of the structure
  • Questioning the necessity of inclusion of a maintenance bay

Prepared statements and explanations in support of the project were given by Select Board Chair Joe Previtera, Select Board Member Robert Gotti, and Donald Walter of Dore + Whittier. Among reasons given in support of the proposed project design were that the size of fire apparatus has increased over the years, requiring larger apparatus bays; that number of fire department personnel have increased significantly over the years and they now require coed facilities; and that the new design allows for clean spaces to be separate from equipment storage spaces, which is important for firefighters to avoid carcinogenic contamination. 

Select Board Member Marianne LeBlanc Cummings addressed the complaint of lack of process transparency by stating that the Town must do better than it has done to make sure residents are informed.

Building Commissioner Mike Perkins noted at the hearing and in written comments that a fire station is a “by right use." In his pre-filed compliance review, he determined that strictly enforcing the Zoning Bylaw would have the undesirable effect of resulting in “a small and impractical structure that would not encompass the intended improvements, and create a need to construct an additional facility to meet the well-defined needs of the Town.” He noted that the variances would not harm the public good or stray from the Zoning Bylaw intent. “Any potential negative impacts creating by granting this zoning relief would be outweighed by the increase in the general public good,” he concluded.

A number of hours into the discussion, ZBA began the process of granting the Town of Westwood’s application, by reciting lengthy motions to permit each requested variance and special permit. The three members of the board, Chair John “Jack” Lally, Michael McCusker and Linda Walsh, voted unanimously in favor on each motion to grant permission.

However, at the advice of Town Counsel Pat Ahearn, the Board continued the hearing, instead of closing it. The Board left the case open to address any related issue that may arise from an upcoming December 18th
hearing by the Conservation Commission, at which another perspective will be taken regarding the impact of the Dore + Whittier’s Fire Station 1 design on Westwood.



You may also be interested in:

OPINION: Can the Taxpayers Afford All the Bells & Whistles on FS1?

OPINION: Proposed FS1 is Essential, No Bells and Whistles

- How Westwood Residents Voted in the November 5, 2024 Election

Police Log: N-Word Found on School Locker, Driver Injured in 3-Car Collision, Entangled Vehicle Flips Over

Following Red Flag Warning, Westwood Joins Other Towns in Banning Outdoor Fires

File Attachment

2
I'm interested
I disagree with this
This is unverified
Spam
Offensive

Replies

Building Commissioner needs to keep his comments restricted to MA Code and how it relates to the proposed building.  Not interject with his personal opinion that anything built smaller would be insufficient or impactable. Commissioner is to review the plans as proposed and render opinions as it relates to MA Building Code.

Just another demonstration of how the Town staff all fall into step to get things done.  Wrong or right.  I'm sure there have been many 'meetings' on Carby Street about getting all those involved on-board, or unified, whether this meets Code or not.  Hence the scripted justification responses at hearings.

Just look at the ZBA, another rubber-stamping of a decision.  No constructive criticism.  God-forbid someone gets out-of-line.  Nobody on any Board in this town ever goes against the grain.

Here we go again, another BIG tax increase.  We'll also have to increase the pot for the elderly and infirmed.  But of course, that will be paid for with additional taxes.  Ever increasing the burden to that group (and us).  And I get to pay not only my own, but I get to pay theirs. 

When does it end?  

I disagree with this
This is unverified
Spam
Offensive